|
|
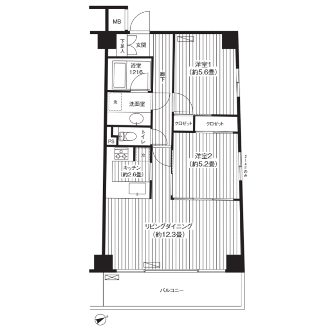
| 所在地 | 東京都三鷹市 下連雀7丁目 ライフステージ武蔵野 |
| 交通 | JR中央線 三鷹駅 徒歩20分 バス(大成高校前 乗7分 停歩5分) JR中央線 吉祥寺駅 バス(篠原病院前 乗10分 停歩4分) |
| 築年月 | 1998/08 | 構造 | RC |
| 階建 | 地上 7階 | 部屋階数 | 5階 |
| 面積 | 71.5m² | 駐車場 | 22,000円 空有 |
| 部屋番号 | 現況 | 空家 | |
| 物件番号 | 26012501 | 掲載期限日 | 2026/02/09 |
| 設備・条件 | 楽器相談可 2人入居可 ペット不可 ガスコンロ 三口コンロ システムキッチン カウンターキッチン 給湯 追い焚き 独立洗面台 シャワー 浴室乾燥機 バス・トイレ別 温水洗浄便座 エアコン 室内洗濯機置き場 CATV オートロック TVドアホン 防犯カメラ 都市ガス 公営水道 エレベータ 宅配ボックス 駐車場有 駐輪場 バイク置き場 バルコニー フローリング タイル貼り オートバス グリル 収納スペース クローゼット シューズボックス |
||

価格
面積


















